The Rock We Tamed

Date: January 2024 Location: Tokyo, Japan Area: 415m2 Function: Retail & Residential Status: Competition Client: TRIAD
“The Rock We Tamed” is an invited competition proposal for a mixed-use building in Tokyo’s busy Aoyama district. The project begins with the notion of an “imaginary rock”, a notional volume shaped by urban constraints such as planning regulations, commercial requirements, and budgetary limits. Rather than treating this calculated mass as a given, the design reimagines it as an untamed rock embedded within the city. From this premise, the building is developed through a series of architectural and human interventions that gradually articulate and inhabit the volume. In doing so, the proposal reframes urban constraints not as limitations, but as a generative framework for a more deliberate and expressive form.

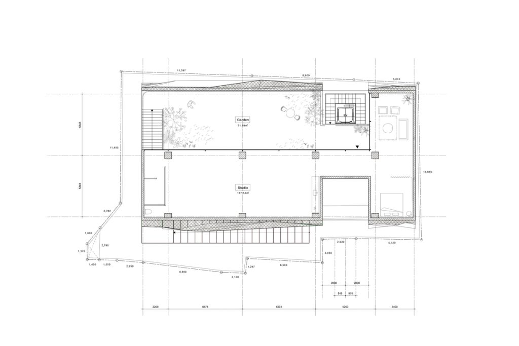
“The Rock We Tamed” presents PAN- PROJECTS’ proposal for an invited competition for a mixed-use building in Tokyo’s Aoyama district. In a city as dense as Tokyo, architectural design often begins by calculating the maximum allowable volume defined by regulations, commercial requirements, and construction constraints. Rather than accepting this as a fixed starting point, the project reconsiders the process itself. If design begins with imagining a volume, it can also be reimagined as something more tangible and evocative; an untamed rock embedded within the city, raw and full of latent potential. This conceptual “rock” becomes the basis for the design, gradually shaped through a series of architectural interventions. Each operation responds to practical demands while refining the overall form, allowing the building to emerge as both functional and spatially coherent. A central passage cuts through the volume, organising circulation while maintaining continuity across the building. Retail units of varying scales are arranged to provide flexibility for different tenants, and the uppermost level accommodates a residential unit with a panoramic terrace, fulfilling planning requirements while completing the composition.



